Per maggiori informazioni contatta Epos Casa Camposampiero al numero 0499302542 oppure tramite il modulo di contatti
Informazioni principali
| Riferimento | 155 C |
| Contratto | vendita |
| Tipologia | Trifamiliare |
| Mq | 130 |
| Prezzo | 360.000 € |
| C.E | ![]() |
| IPE | 0 |
| Camere | 3 |
| Bagni | 2 |
Descrizione
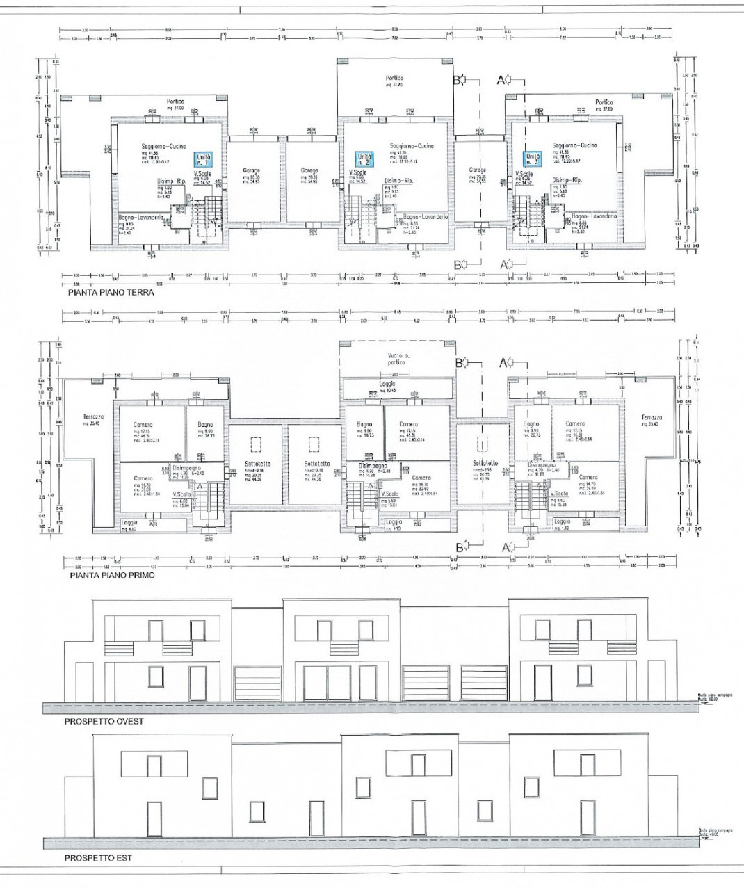
In vendita a Santa Giustina In Colle, nella zona di Fratte, proponiamo in vendita una splendida porzione trifamiliare di testa in costruzione.
Questa meravigliosa soluzione abitativa è contraddistinta da un ampio giardino privato ideale per trascorrere piacevoli momenti all'aria aperta.
La proprietà vanta anche la classe A4 con 6 kw fotovoltaico, garantendo massima efficienza energetica ed un risparmio significativo sulle spese.
L'immobile offre finiture di pregio e si compone di vasti spazi distribuiti su ampia zona giorno open space, due camere da letto più un ulteriore stanza con travi a vista in legno bianche, due bagni, un ampio portico perfetto per pranzi e cene all'aperto e una spaziosa terrazza al piano primo che regala uno scenario suggestivo. Un ulteriore punto a favore è la possibilità, dato lo stato attuale dell'immobile, di personalizzare le finiture e gli interni secondo i propri gusti e esigenze.
Consegna estate 2025
Non lasciarti sfuggire questa imperdibile occasione! Contattaci subito per pianificare una visita guidata.
Agenzia Epos Casa di Camposampiero 049 9302542
Informazioni Immobile
Posizione
Contattaci
- agenzia@eposcasa.com
- 0499302542
- Piazza Castello, 7, Camposampiero (PD)





















