Per maggiori informazioni contatta Epos Casa Camposampiero al numero 0499302542 oppure tramite il modulo di contatti
Informazioni principali
| Riferimento | 183C |
| Contratto | vendita |
| Tipologia | Bifamiliare |
| Mq | 190 |
| Prezzo | 180.000 € |
| C.E | ![]() |
| IPE | 0 |
| Camere | +3 |
| Bagni | 2 |
Descrizione
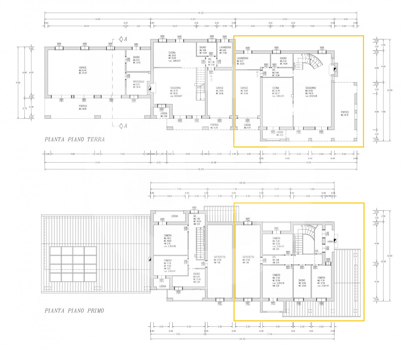
Scopri questa straordinaria opportunità di acquistare una porzione di villa bifamiliare situata nella tranquilla zona di Fratte, nel comune di Santa Giustina In Colle. Con una superficie totale di 190 mq e un esclusivo scoperto privato di circa 900 mq, questo immobile rappresenta la soluzione ideale per chi desidera personalizzare il proprio spazio abitativo secondo le proprie esigenze.
Attualmente allo stato grezzo, la villa offre ampie possibilità creative: potrai progettare gli interni in base ai tuoi gusti personali! La generosa zona giorno si estende su circa 70 mq, perfetta per accogliere amici e familiari in un ambiente luminoso e spazioso. Completano l'immobile quattro confortevoli camere da letto, due bagni e una pratica lavanderia.
Inoltre, non mancano i comfort come il garage incluso che garantisce sicurezza e comodità per i tuoi veicoli.
Non perdere l'occasione unica di realizzare la casa dei tuoi sogni! Contatta subito la nostra agenzia di Camposampiero al numero 0499302542 per avere ulteriori informazioni o per organizzare una visita.
Informazioni Immobile
Posizione
Contattaci
- agenzia@eposcasa.com
- 0499302542
- Piazza Castello, 7, Camposampiero (PD)










