Per maggiori informazioni contatta Epos Casa Camposampiero al numero 0499302542 oppure tramite il modulo di contatti
Informazioni principali
| Riferimento | 184C |
| Contratto | vendita |
| Tipologia | Bifamiliare |
| Mq | 240 |
| Prezzo | 230.000 € |
| C.E | ![]() |
| IPE | 0 |
| Camere | 3 |
| Bagni | 3 |
Descrizione
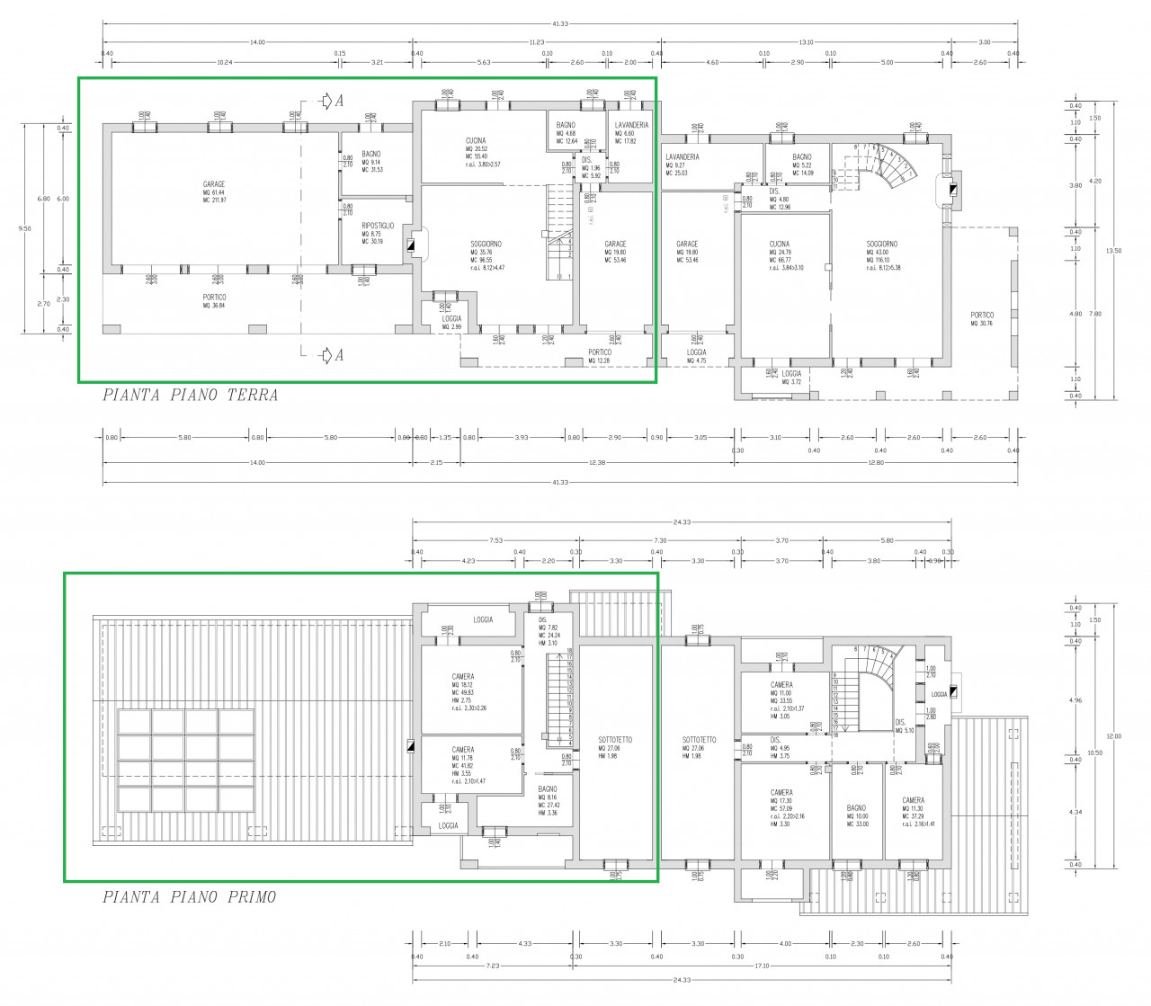
Scopri questa meravigliosa e spaziosa porzione di villa bifamiliare situata nel tranquillo comune di Santa Giustina In Colle, nella zona di Fratte. Questa proprietà è attualmente allo stato grezzo, offrendo un'incredibile opportunità per personalizzare gli interni e gli impianti secondo i tuoi gusti e le tue esigenze.
Con oltre 2000 mq di scoperto privato, avrai ampio spazio all'aperto per goderti il verde circostante, organizzare eventi con amici o semplicemente rilassarti al sole. La villa vanta una generosa zona giorno di oltre 70 mq, perfetta per accogliere la tua famiglia e i tuoi ospiti in un ambiente luminoso ed elegante.
La disposizione interna include tre bagni ben progettati che garantiscono comodità a tutti i membri della famiglia. Inoltre, troverai una lavanderia funzionale e un ripostiglio utile per mantenere l'ordine negli spazi abitativi.
Non dimentichiamo il garage ricovero attrezzi di 80 mq – uno spazio versatile ideale non solo per custodire veicoli ma anche come area hobby o deposito attrezzature da giardinaggio.
Il portico completa la proprietà, creando lo spazio ideale dove trascorrere piacevoli momenti all'aperto durante le calde serate estive.
Santa Giustina In Colle offre un'atmosfera tranquilla pur essendo ben collegata ai principali centri urbani della regione veneta.
Questa è un'opportunità imperdibile! Non perdere l'occasione di realizzare la casa dei tuoi sogni in questo splendido contesto. Contatta subito l'agenzia Epos casa di Camposampiero (PD) al n. 049 9302542 per ulteriori informazioni e prenotare una visita!
Informazioni Immobile
Posizione
Contattaci
- agenzia@eposcasa.com
- 0499302542
- Piazza Castello, 7, Camposampiero (PD)












